zakaz@k-kirov.ru

Корпус ЩУРн-3/12зо 540*310*165мм серый IP31 IEK

цена
5 050,89 ₽/шт
наличие
В наличии
шт
Подобрать аналогСвязанные товары

Описание и характеристики

Корпус ЩУРн-3/12зо-1 36 IP31 IEK

Корпус ЩУРн-3/12зо-1 36 IP31 IEK предназначен для сборки учетно-распределительных электрощитов с использованием модульной аппаратуры, для ввода электроэнергии, ее учета и распределения, а также защиты сетей напряжением 230 / 400 В от токов перегрузки и короткого замыкания.

Преимущества

  • Повышенная антикоррозийная стойкость.
  • Высококачественное наружное покрытие.
  • Единый секрет замка.
  • Высокая технологичность и простота сборки.
  • Высокий уровень электробезопасности.
  • Сертификат соответствия.

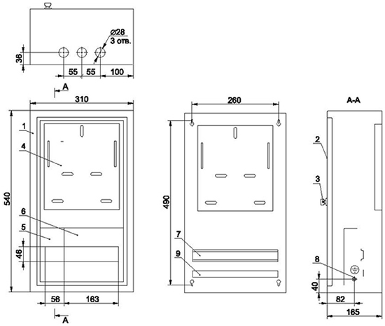
Конструкция и размеры

1 - корпус щита.
2 - дверь.

3 - замок.
4 - панель под счетчик.

5 - фальшпанель.
6 - фальшпанель.

7 - DIN-рейка.
8 - Гайка заземления М6.

9 - рейка шин N и PE.


Защитная раздельная оперативная панель исключает возможность поражения током в ходе эксплуатации изделия, а также позволяет пломбировать вводной аппарат без ограничения доступа к групповым аппаратам.
Универсальная монтажная панель под счетчик позволяет без дополнительных переходников установить любые типы однофазных или трехфазных счетчиков.
Информационное окно для удобства снятия показаний счетчика.

Материалы и цвета

Цвет корпуса Серый (RAL 7035)
Материал корпуса листовая сталь
Покрытие корпуса эпоксидно-полиэфирная краска
Фактура поверхности Шагрень

Технические характеристики

Артикул MKM35-N-12-31-ZO
Тип изделия корпус металлический ЩУРн-3/12зо-1 36 IP31
Конструктивное исполнение с раздельной оперативной панелью и смотровым окном
Количество устанавливаемых счетчиков 1
Тип устанавливаемого счетчика трехфазный
Количество модулей 12
Вид установки навесной
Номинальный ток, А 100
Максимальная статическая нагрузка на панель, кг 2,0
Максимальная статическая нагрузка на оболочку, кг 17,1
Количество вводов 3 отверстия d 28 мм (снизу)
Толщина металла, мм 0,8 - 1,0
Угол открытия двери, градусов 105
Тип применяемых аппаратов модульные
Диапазон рабочих температур, °C -60... +40
Степень защиты от пыли и влаги IP31
Климатическое исполнение и категория размещения УХЛ3
Степень защиты от внешних механических воздействий IK08
Класс защиты от поражения электрическим током I
Вес, кг 5,7
Срок службы, лет 15

Комплектация

Знаки электробезопасности Маркировочная таблица

Расшифровка условных обозначений

  • Щ - щит.
  • УР - учетно-распределительный.
  • н - навесного исполнения.
  • 3 - тип счетчика трехфазный.
  • 12 - максимальное количество модулей.
  • з - с замком.
  • о - со смотровым окном.
  • 1 - с раздельной оперативной панелью.
  • 3 - тип покрытия ЭПК/шагрень.
  • 6 - цвет краски RAL 7035.
  • IP31 - степень защиты от пыли и влаги по ГОСТ 14254.

Связанные товары

Аналоги